Casa-Chalet en Venta en Beniganim Valencia por 79500€
- 79.500€
Casa-Chalet en Venta en Beniganim Valencia por 79500€
- 79.500€
Resumen
- CDP-500856
- Casa-Chalet
- 7
- 3
- 0
- 0.00 m²
- 1920
Detalles
Actualizado el octubre 23, 2025 en 11:30 am-
ID del inmueble CDP-500856
-
Precio 79.500€
-
Supeficie 0.00 m²
-
Dormitorios 7
-
Baños 3
-
Garaje 0
-
Año de construcción 1920
-
Tipo de inmueble Casa-Chalet
-
Operación Venta
-
Id original 1243298
-
Orientación Este
-
Conservación A reformar
Características
Descripción
Venta particular. Casa parcialmente rehabilitada de dos alturas tipo dúplex. A 100 METROS EXACTOS del Ayuntamiento, policía local y la plaza mayor.
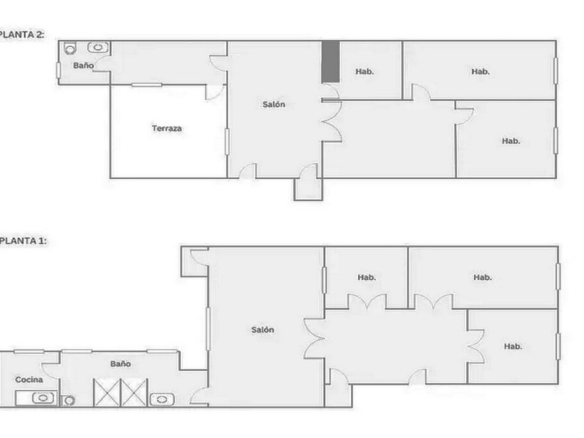
Es una única finca registral. Las dos viviendas juntas tienen un total de 214 m2 (datos catastro)
-Piso planta primera: 131 m2. -Piso planta segunda: 79 m2 más 11 m2 de terraza pisable despejada. (Ver PLANOS)
En caso de interesar la segregación se podría realizar, ya que cada planta y piso tiene su acceso totalmente independiente, así como sus respectivas estancias individuales.
-Se ejecutó la rehabilitación integral del tejado por una empresa de arquitectura; se fortificaron los suelos en ambas plantas; se bajaron los techos y se instaló la electricidad interior. Toda la obra realizada consta en un extenso dossier que se entregaría a la persona interesada.
-Finca construida en 1920 con fachada de diseño arquitectónico clásico. Frontalmente orientada a oeste y posterior al este. Ambos pisos son sumamente luminosos y ventilados. Las dos plantas tienen los suelos cambiados a gres. Todas las paredes son lisas en la planta 2, y parcialmente en la 1 planta.
Altura de techo planta 1 – 3.50 metros. Planta 2 enorme altura con altillo, actualmente rebajado con escayola a 3 m.
-El garaje es una propiedad independiente de otro titular.
-Ideal como inversión, viviendas para residir, o negocio de explotación turística. Sin altas dadas de suministros
Dirección
Abrir en Google Maps-
Dirección: ,
-
Ciudad: Beniganim
-
Provincia: Valencia
-
Código postal: 46830
-
País: ES
Clasificación energética
-
Clasificación energética: A
-
Índice de rendimiento energético global: kWh/m² año
-
Índice de rendimiento de energías renovables: kg CO₂
- kWh/m² año | Clasificación energética AA
- B
- C
- D
- E
- F
- G
- Juan Antonio


