Casa-Chalet en Venta en Vall D Uxo, La Castellón
- 73.000€
- 73.000€
Resumen
- Casa-Chalet
- 2
- 1
- 0
- 147,00 m²
Detalles
Actualizado a febrero 12, 2026 en 5:25 am- Precio 73.000€
- Supeficie 147,00 m²
- Dormitorios 2
- Baño 1
- Garaje 0
- Tipo de inmueble Casa-Chalet
- Operación Venta
- Id original 1250775
- Conservación Bueno
- Superficie de la terraza m²
- Superficie escaparate m²
Descripción
Se vende casa para reformar con proyecto y licencia de obras con tasas ya pagadas en la zona Asunción de La Vall d’Uixó (Castellón). Excelentemente situada a 10 minutos andando del Centro de la localidad.
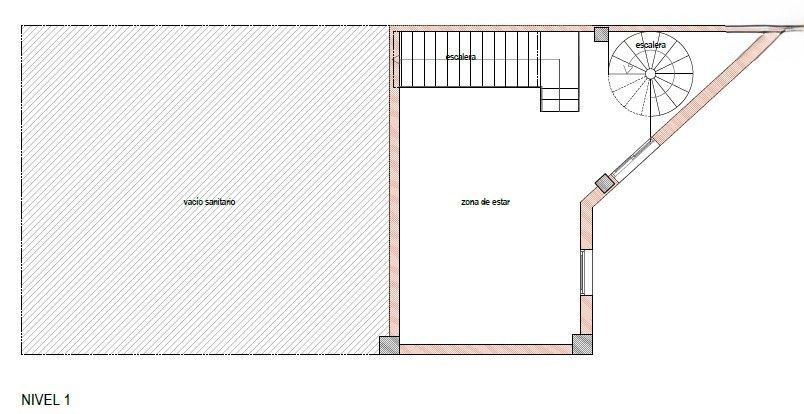
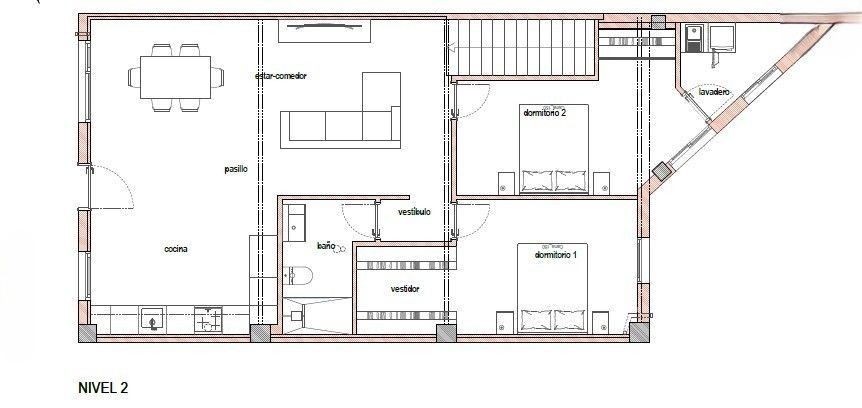
En el Proyecto se contempla salón-comedor, cocina, baño, galería-lavadero y dos habitaciones dobles (una de ellas con vestidor incorporado); en planta superior están las tres habitaciones y el baño, y en la planta inferior una gran sala diáfana.
Los desagües ya están hechos. En la zona del patio, que da al río, había que hacer una cuña de 7m² que se perderían del mismo.
No están incluidos en el precio los honorarios de la inmobiliaria, los gastos de Notaria, los gastos del Registro ni los impuestos de la compraventa.
Si estas interesado en esta vivienda o conoces a alguien que pueda estarlo no dudes en ponerte en contacto con nosotros para pedir más información. En Ximo Granell inmobiliaria La Vall D’Uixó estaremos encantados en atenderte.[IW]
Dirección
Abrir en Google Maps- Dirección: ,
- Ciudad: Vall D Uxo, La
- Provincia: Castellón
- Código postal: 12600
- País: ES
Video
Clasificación energética
- Clasificación energética: En tramite
- Índice de rendimiento energético global: kWh/m² año
- Índice de rendimiento de energías renovables: kg CO₂
- A
- B
- C
- D
- E
- F
- G




